本文へスキップ

電話でのお問い合わせは03-5397-0333

〒166-0004 東京都杉並区阿佐谷南3-33-8


新築戸建物件

物件概要

物件名 物件住所
ニュー・ベルテ 東京都杉並区阿佐谷南3-28-4
建物種類 構造 建築年月
戸建 木造 2022年2月
面積 間取り 向き
118.93u(車庫15.66u含む) 3LDK 西向き
階数 交通
3階建  JR中央・総武線
阿佐ヶ谷駅 徒歩5分
東京メトロ丸の内線
南阿佐ヶ谷駅 徒歩5分 
賃料 管理費 契約期間
350,000円 無し 2年間 
敷金 礼金 ペット
 1ヶ月 1ヶ月   不可
現況 入居時期 火災保険
リフォーム・クリーニング中 1月下旬  要加入  32,000円/2年間
備考
 保証会社加入必須 初回保証料70%(賃料総額)
          2年契約/継続保証料1万円(他プランもあります。)


設備案内
エアコン4基、2階リビング、システムキッチン、対面キッチン、
食器洗い乾燥機、追い炊き機能、浴室テレビ、ウォシュレット、床暖房、
シューズクローク、モニター付きインターホン、宅配ボックス、
駐車場付き、スマートコントロールキー、
スマートフォンアプリで玄関ドア解錠可能


※テレビアンテナがありません。ケーブルテレビ又は
 ネットテレビ等にご加入ください。

※リフォーム・クリーニング中
※内見時、現地鍵対応です。
 事前にお問い合わせください。

募集図面をご希望の方はこちらのリンクからどうぞ→→→「☆☆☆

物件写真

※リフォーム・クリーニング中につき、以前の画像を再掲載しています。

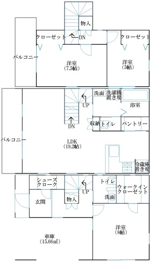
間取り図

洋室@-1

洋室@-2

洋室A-1

洋室A-2

洋室B-1

洋室B-2

システムキッチン

対面キッチン

シンク

3口ガスコンロ

食洗器

食品庫

リビングダイニング@-1

リビングダイニング@-2

リビングダイニング収納

床暖房配置図
画像をクリックすると
パンフレットを確認できます

浴室@-1

浴室@-2

洗面所
(2F)

洗面所
(1F)

室内洗濯機置き場

トイレ(1F)
ウォシュレット機能付き

トイレ(2F)
ウォシュレット機能付き

洋室@収納
ウォークインクローゼット

洋室A収納
クローゼット

洋室B収納
クローゼット

階段収納

廊下収納

玄関収納

玄関

玄関内

エアコン4基

階段@-1

階段@-2

階段@-3

廊下

バルコニー

建物外観@-1

建物外観@-2

玄関

郵便ポスト
宅配ボックス

駐車スペース
※リフォーム・クリーニ中につき、以前の画像を再掲載しています。